Florina School of Fine Arts

Location: Florina, Greece
Description: University building, Education
Category: Education
Scale: Large
Size: 4.635sqm
Design Period: 2019
Collaborators: P5 Architects

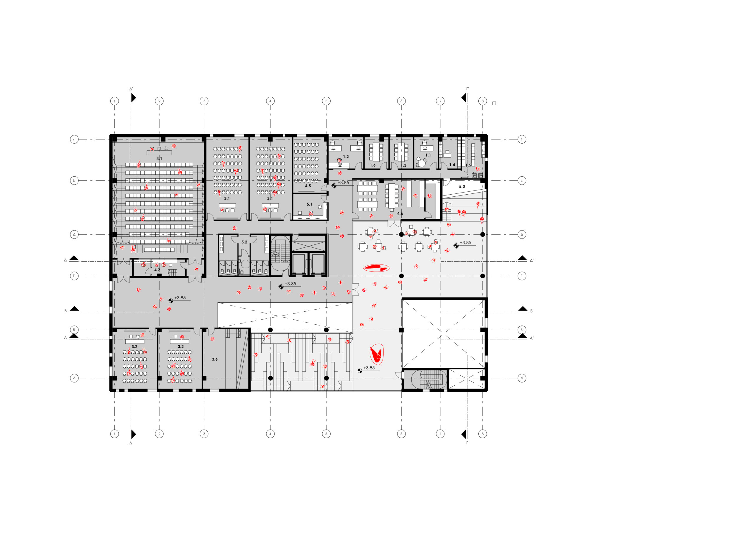
The architectural proposal reimagines the organizational principals of the education spaces in a way that challenges their traditional structure and expands the public areas in the building. This expansion enables alternative ways of occupation, encourages interaction between users and leads to the reassessment of how a School of Fine Arts should function not only in terms of its students and members of staff but also in terms of the city and its residents.

 

The main architectural concept is based on a network of external covered spaces – ‘Art Courtyards’ – that runs through the building, starting at the ground floor entrance and leading up to the rooftop. These courtyards depending on their location, size and typology create spaces of different qualities that function either individually as extensions to the workshops or combined as an external exhibition space with public access. The exhibition space can be used by the students for presentations, events etc.as well as to display the work of guest artists attracting more external visitors to the school. The external visitors by navigating through the Courtyards network they can explore the workshop spaces and subsequently experience the creative process and gain a better understanding of it.

 

In other words the Art Courtyards are creative hubs that function as catalysts that enable dialog and interaction between students and citizens in order to transform the creative initiatives into plausible actions, promote the history and identity of the school and showcase it’s new image.

The  concept of the Art Courtyards has reference  to the traditional typology of  ‘hayati’ (loggias)  – an external covered space frequently found in the traditional architecture of Florina and wider Balkan area. The word ‘hayati’ has its origins in the turkish word ‘hayat’ that means life and subsequently ‘hayati’ in the traditional architecture was the space that most activities of the house took place. As an analogy to this concept the ‘Art Courtyards’ are meant to be the center of the School life functioning as magnets for people, ideas and cultural events  but also as a reference point for the citizens of Florina facilitating communication, dialog and collective actions and promoting the School identity.

 

 

Parallel to this, the Courtyard network and the spiraling path that connects them run through the building and erode its orthogonal mass affecting its form. This ‘erosion’ results to a sequence of open and closed spaces which combined with the inclined surfaces of the auditoria and stairs and the faceted roof creates a sculptural form that makes reference to the programmatic use of the building as a School of Fine Arts and becomes a landmark for the city of Florina.

Subscribe With Your Email
More in this category

Close

Privacy Policy & GDPR Compliance

IN GENERAL

The use of our web pages and the saervices provided to the visitor on the site owned by the company, requires your agreement with the Privacy Policy of this site. Therefore, the visitor must carefully read the contents of this page before using the services of our website. If he does not agree, he must leave this website and NEVER make use any of its services or content.
This privacy policy may change from time to time according the relevant legislation. We will not explicitly notify our customers or our site’s users about these changes. Instead, we recommend you to occasionally visit this page for any changes to this privacy policy. The continued use of the website even after any changes to the Privacy Policy implies the unconditional acceptance of these terms by you.

Privacy and Protection of personal data

We collect and process your personal data only when it is absolutely necessary.
We will never sell, rent, distribute, or publicize in any way your personal data, except where it is absolutely required.
If you are under 16, you MUST have your parents’ consent before using the services of this site.

Relevant legislation

Along with our company’s internal IT systems, this site is designed to comply with the following laws/regulations regarding the protection of user’s personal data:

  1. EU Data Protection Directive (DPD of year 1995)
  2. Regulation on general EU data protection (GDPR of year 2018)

Personal information collected by this site and why we collect it

This site collects and uses personal information for the following reasons:

Invoicing / financial information

In case you purchase any of our services / products, we will keep in our database the information necessary for the invoicing, such as name, address, email, phone number, vat id, etc. We will contact you in cases involving payment of services / products, invoice balances, recurring charges, offers about our products etc, via e-mail, sms or by phone. All data transferred via email is protected by a TLS / SSL security protocol.

Website traffic monitoring

Like most sites, this site uses Google Analytics (GA) to track user activity. We use this data to determine the number of our site visitors to better understand how they find and use our web pages. Although GA records data such as your geographic location, your device, your web browser, and your operating system, none of this information identify you to us. GA also records your computer’s IP address, which could be used to identify you, but Google does not provide access to it. We believe that Google is a third data processor that is compliant with the requirements of European legislation.

Contact forms and e-mail links

If you choose to contact us using a contact form or an email link, none of the data you provide will be stored to our site or transferred or processed by any third party data processor as defined below in the section «Our third-party data processors». Instead, these data will be sent to us via an SMTP protocol (Simple Mail Transfer Protocol). Our SMTP servers are protected by a TLS/SSL security protocol, meaning that email content is encrypted before being sent over the Internet. The content of the email is decrypted by our local computers and devices.

Newsletters

If you choose to subscribe in our newsletter, the email address you submit will be forwarded to Mailchimp which manages our e-mail marketing services. Mailchimp is a third-party data processor (see «Our third-party data processors» below). Your e-mail address will not be stored in any of our databases. Your e-mail address will remain in the Mailchimp database for as long as we continue to use our e-mail marketing services or until you explicitly request to be removed from the mailing list. You can do, using the delete link contained in all the email newsletters we send you.
As long as your e-mail address remains in the Mailchimp database, you will receive periodic e-mail newsletters from us regarding offers, new product or services etc.

Customer Satisfaction Survey / Customer Loyalty Program

The data we collect from the site, once you have accepted the terms of use, may be used to participate in a Customer Satisfaction Survey where you are asked about your site and product / service usage experience or a customer loyalty program where you receive special discounts and offers to our products and services under certain conditions.

Live chat

When communicating via live chat, the information we collect is the name, email address, IP, the date and time of communication, and the text that was exchanged during this communication. These data are collected to better serve the customer and for security reasons.

Advertising campains

Third party vendors, including Google, can show our ads on websites. For this reason, cookies can be used to update, optimize, and display ads based on a previous user’s visit to our site, as well as for Remarketing. You can opt out of such use of cookies by Google by clicking here.
You may also opt out of the use of such cookies by third-party vendors by clicking here.

About Cookies

What is a cookie?

The term «cookie» refers to a small data file consisting solely of a set of text information that the site transmits to the web browser on your computer’s hard disk, either temporarily throughout your visit , or sometimes for longer periods, depending on the type of cookie. Cookies perform different operations (for example, you are distinguished from other site’s visitors or remember certain info for you like your preferences) and are used by most websites to improve your user experience.

Each cookie is unique to your browser and contains some anonymous information. A cookie typically contains the name of the cookie field, the cookie’s lifetime, and a value (usually in the form of a randomly generated unique number).

Types of cookies

The basic types of cookies are described below

  • Session cookies

    These are temporary cookies that remain in the cookie file of your device’s browser only during your visit and are deleted when you close the browser.

  • Persistent cookies

    These remain in the cookie file of your device’s browser even after the browser closes, sometimes for one year or more (the exact length of stay depends on the lifetime of each cookie). Permanent cookies are used when the site administrator may need to know who you are for more than one visit (e.g., to remember your username or your site configuration preferences).

  • First-party cookies

    These are cookies installed on your browser and/or hard drive of your device from the site you are visiting. This includes assigning a unique ID to you, in order to monitor your site navigation. Site creators often use first-party cookies to handle visits and for identification purposes.

  • Third-party cookies

    These are cookies used by third parties, such as social networks to track your visits to the various sites they advertise. The site administrator has no control over these third-party cookies.

Cookies on this site and how to manage them

On this site, we use cookies to improve your user experience. Site functionality will be significantly affected if you disable or disagree with the use of cookies.
See the following information about the third-party cookies we use on this site, including how to disable them and the effect of disabling on the site’s functionality. If you need any help on how to manage certain types of cookies, including how to check or delete them, please visit www.aboutcookies.org.

Google Analytics cookies

Google Analytics cookies are performance analytics/logging cookies that allow us to collect anonymous information about how visitors use our site. These cookies can inform us on how many visitors use the site, the visit’s time and duration, and also provide information on how visitors navigate across the site. This information helps us improve the way our site works. They are anonymous information and do not contain personal information.
The information collected by the Google Analytics cookies about our site is transferred and stored on Google’s servers in accordance with Google’s privacy policy.
For more information on Google Analytics, please visit https://support.google.com/analytics/answer/6004245
You can disable Google Analytics tracking by visting https://tools.go ogle.com/dlpa ge/gaoptout?hl =en=GB
If you disable these cookies, your activity will not be counted or used in the statistics we collect to improve the services we provide through this site. Website functionality will not be affected.

Video providers cookies

Video providers can place cookies on your device if you watch their video on our site.
If you disable these cookies you may not be able to see the embedded videos on our site.

Social Networks cookies

Third-party social networks can place cookies on your device if you choose to share a web page of our site with another third-party Social Network site, by clicking on one of the «share» buttons.
If you disable these cookies, you will not be able to share any of our content with third-party social networks

About this site’s web server

All web traffic (file transfer) between this site and your browser is encrypted and transferred via the HTTPS protocol using Secure Sockets Layer (SSL). Our servers, in order to ensure the smooth and secure operation of our services, record the user’s ip and, in case of failed connections, the username, in log files through security systems (firewalls, ddos filters, http filters, sql injection filters, visit statistics, cloudflare services) and backup. All of the above data is kept for short periods on our servers with modern security protocols so only authorized personnel can access them and only in cases to avoid malicious actions.

Third-party personal data processors

We use a number of third parties to process personal data for us (for example datacenter services, hosting services, backup services, payment gateways, shipping companies, marketing services etc). These Third-party personal data processors have been carefully selected to comply with the legislation mentioned in this document.

Data breaches

For any of your personal information stored in our database, all necessary action will be taken to be secure as possible.
We will report any unlawful violation of our database or any third party data processing database to all relevant stakeholders as well as authorities within 72 hours of the violation, if it is obvious that the personal data stored in recognizable form, have been stolen.

Access to information

For any personal information that is stored in our database, you have the right to access, correct or delete them. You can get information about this and its limitations by contacting us.

Data Protection Officer

You may contact the data protection officer (DPO) of this site by using the email in our contact page.

3 Iasona Str, IOANNINA, 45221

(+30) 6971708081 (+44) 07528351271

Close

Copyright 2022 Pavlidou Architects

Designed & Developed by small studio